Projekter
På Roskilde Havn har vi leveret og monteret en moderne og funktionel cykelstation, der tilbyder optimal cykelparkering og ekstra komfort for brugerne. Projektet omfatter følgende:
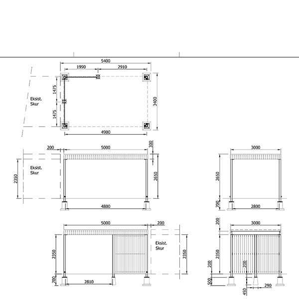
Overdækning: FalcoPlana
- Enkeltsidet overdækning model FalcoPlana, designet til at beskytte cykler mod vind og vejr.
- Overdækningen er forsynet med indvendige vægge, som giver ekstra læ og samtidig fungerer som infotavler til brugerne af lejecykler.
- Beklædt med træ omkring sternen, hvilket giver et naturligt og æstetisk udtryk, der harmonerer med omgivelserne på havnen.
- Udstyret med præfabrikerede betonfødder og regnvandsudløb ca. 10 cm over terræn.
- Mål:
- Længde: 3 m
- Dybde: 5 m
- Højde: 2,35/2,55 m (skrå tagkonstruktion for optimal regnvandsafledning).
Cykelstativ: FalcoDK
- FalcoDK cykelstativ i dobbeltsidet udførelse med plads til 8 cykler (2x4 pladser).
- Designet med 45° opstilling i sildebensmønster, der optimerer pladsforholdene og gør det let at parkere cykler.
- Specifikationer:
- Afstand mellem cykler (c.t.c.): 625 mm
- Parallel afstand mellem cykler: 440 mm
- Længde: 2.330 mm
- Robust konstruktion med søjler til nedstøbning for maksimal stabilitet.
Cykelpumpe: FalcoFix 2.0
- FalcoFix 2.0, en manuel cykelpumpe med høj funktionalitet.
- Udstyret med 2 forskellige ventiler for kompatibilitet med alle typer cykler samt et integreret barometer for præcis lufttrykjustering.
- Pumpen er tilføjet for at yde ekstra god service til lejerne af cyklerne, så de altid har mulighed for at justere dæktrykket og sikre en optimal cykeloplevelse.
Ekstra funktionalitet
- Indvendige vægge fungerer som læskærme, der beskytter cyklerne mod vind og vejr.
- Væggene er også udnyttet som infotavler, der informerer brugerne af lejecykler om stationens funktioner og regler.
Resultatet er en praktisk, brugervenlig og visuelt tiltalende løsning, der matcher Roskilde Havns unikke miljø og behov.
Vil du se en video af projektet så klik her
Har du et lignende projekt? Kontakt os for en skræddersyet løsning!
Video you find here https://youtu.be/0DuiGubKb60
Holland har et mål om at være fuldt cirkulært i 2050 og halvere forbruget af primære råmaterialer allerede i 2030.
Det forpligter – også for Falco, hvor vi siden starten har arbejdet modulært og med fokus på lang levetid. Men cirkulær tænkning kræver stadig nye metoder. Derfor har vores moderselskab i Holland haft en dedikeret Circularity Manager, John Wermink, siden 2020.
Han arbejder målrettet med at øge graden af cirkularitet i vores produkter gennem design til nem montering og demontering, mulighed for reparation, renovering og genbrug, samt fokus på at bevare materialernes og arbejdskraftens værdi. Derudover arbejder Falco ud fra certificeringer som ISO 9001, ISO 14001, VCA, FSC® og CO₂-styringssystem.
Vil du vide mere? Vi deler gerne vores erfaringer og hjælper dig med at finde cirkulære løsninger til et smukkere og mere ansvarligt udemiljø.


